




Praxa Imobiliare va ofera spre vanzare un apartament , situat intr-un ansamblu nou, in zona strazii Teilor, intr o zona foarte linistita si aerisita, aflat in proximitatea mijloacelor de transport in comun, al principalelor puncte de interes si a facilităților locale.
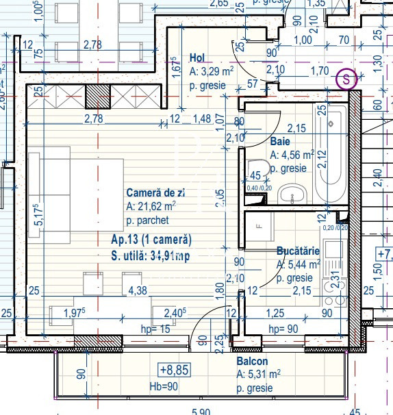
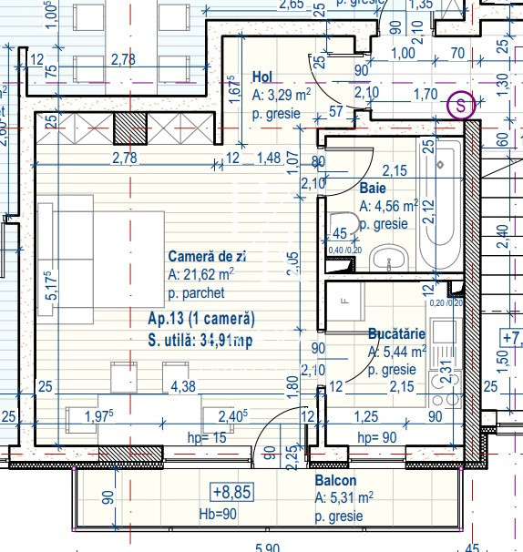
Suprafata utila este de 35 mp, plus balcon de 5 mp, compartimentarea este decomandata si se prezinta astfel:
Dormitor, bucatarie, baie si un balcon de 5 mp!
Apartamentul se afla la etajul 1 intr-un imobil cu 3 niveluri! Se preda semifinisat sau finisat conform pozelor contra cost. Incalzirea este prin pardoseala!
Apartamentul se vinde la stadiul de semifinisat, TVA inclus in pret.
Pozele sunt orientative.
La cerere se poate achizitiona un garaj la pretul de 6000 de euro!
Pentru vizionari ma puteti contacta la Tel: 0756135031
ID P104270