Imagine 100

Ap 2 cam, 55 mp, decomandat, parcare extra, semifinisat, TVA inclus, zona Terra!

ID: P139785 Floresti 21
95.000€
Descriere
POSIBILITATE DE RECOMPARTIMENTARE IN 3 CAMERE SEMIDECOMANDATE!

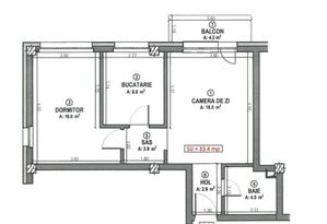
Va propunem spre vanzare un apartament, semifinisat, de 2 camere in zona Terra, Floresti, judetul Cluj, intr o zona foarte linistita si aerisita,aproape de statie de autobuz, magazine, farmacie si alte puncte de interes.

Apartamentul se afla la etajul 2 al unui imobil cu 3 niveluri, suprafata utila fiind de 55 mp plus un balcon cu suprafata de 5 mp

Compartimentarea este semidecomandata si gandita astfel:
Living, bucatarie, dormitor, dressing , hol, baie si un balcon!

Optional se poate achizitiona loc de parcare exterior la pretul de 4.000 euro

Pentru vizionari ma puteti contacta la Tel: 0774051458

Se accepta plata cash si prin credit.
ID: P139785
Caracteristici
  • ID:P139785
  • Nr. camere:2
  • Nr. dormitoare:1
  • S. utila:55.00 mp
  • S. terase:5.00 mp
  • Comp.:Decomandat
  • Confort:1
  • Etaj:Etaj 2
  • Nr. bucatarii:1
  • Nr. bai:1
  • Nr. balcoane:1
  • Nr. parcari:1
  • Pret parcare:4.000€
  • An constructie:2024
  • Structura:Caramida
  • Tip imobil:Bloc
  • Regim inaltime:P+3
Specificatii
Curent
Apa
Canalizare
Gaz
Centrala proprie
Ferestre Termopan
Usa intrare Metal
Usa interior Celulare
Apometre
Contor caldura
Contor gaz
Nemobilat
Interfon
Localizare
Darius Drigla
Sales Associate
Esti interesat de aceasta proprietate ?
Proprietati similare
TOP De vanzare Imagine 3973
Apartament 2 camere, 52mp, terasa 34mp, garaj, zona Urusagului!
Floresti 107.000€
2 camere 1 baie 52mp
TOP De vanzare Imagine 3943
Apartament 2 Camere, MODERN, 47 mp, garaj parcare la cerere, lift, zona Eroilor!
Floresti 105.000€
2 camere 1 baie 47mp
TOP De vanzare Imagine 3838
Apartament 1 camera, 35mp, balcon, mobilat complet, parcare, zona Parc Poligon!
Floresti 96.000€
1 camera 1 baie 35mp
TOP De vanzare Imagine 3745
Apartament 1 camera, 41mp, parcare, LIFT, mobilat modern, zona ONCOS
Floresti 99.900€
1 camera 1 baie 41mp
TOP De vanzare Imagine 3733
Apartament 2 camere I Donath Park I Etaj 2/3 I Parcare I Preț excelent
Cluj-Napoca, Grigorescu 99.900€
2 camere 1 baie 42mp
TOP 0% comision De vanzare Imagine 3673
Apartament de vanzare 65mp - 3 camere cu garaj in Floresti!
Floresti 95.000€
3 camere 1 baie 65mp