Imagine 100

Apartament 2 camere decomandate, zona Profesor Ioan Rusu

ID: P152792 Floresti 7
95.000€
Descriere
 Praxa imobiliare va propune spre vanzare un apartament situat in Floresti, pe strada Profesor Ioan Rusu, intr-o zona linistita, aflata la cateva minute de mers pe jos de puncte de interes cotidian precum primarie, scoala, gradinita, statie de autobuz, magazine sau farmacii.

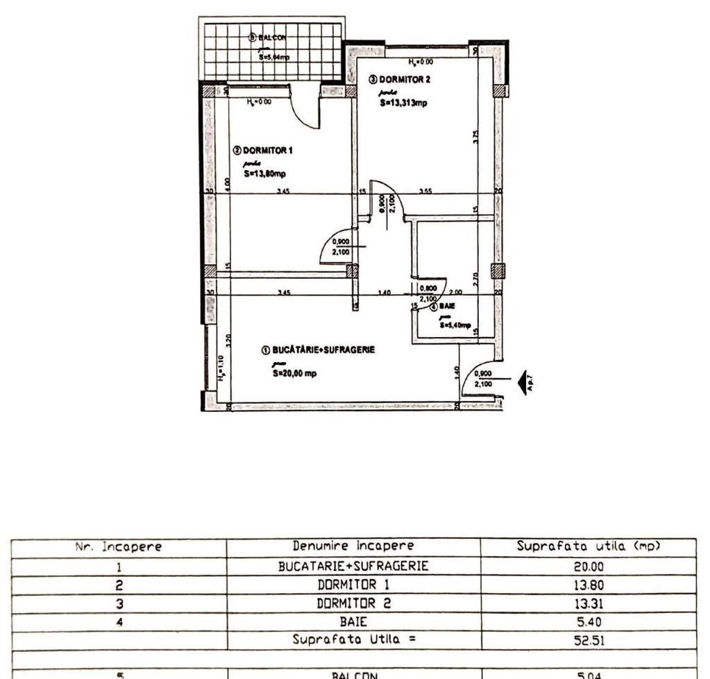
 Apartamentul are o suprafata totala de 53 mp si este compartimentat astfel: hol cu bucatarie open-space, 2 dormitoare decomandate, baie si balcon.

 Apartamentul este situat la parterul inalt al unui imobil cu 3 etaje+mansarda, construit in anul 2017.

 Apartamentul se vinde mobilat conform pozelor, finisajele, mobilierul si electrocasnicele sunt in stare buna, gata pentru utilizare imediata.

 Incalzirea este realizata prin centrala termica proprie cu calorifere.

 Apartamentul se vinde impreuna cu un loc de parcare care este inclus in pret.

 Pentru detalii si vizionari, va invit sa ma contactati la numarul de telefon 0756 135 031
Id intern: P152792
Caracteristici
  • ID:P152792
  • Nr. camere:2
  • Nr. dormitoare:2
  • S. utila:53.00 mp
  • Comp.:Decomandat
  • Confort:1
  • Etaj:Parter
  • Nr. bucatarii:1
  • Nr. bai:1
  • Nr. balcoane:1
  • Nr. parcari:1
  • An constructie:2017
  • Structura:Caramida
  • Tip imobil:Bloc
  • Regim inaltime:P+4
  • Clasa energetica:B
Specificatii
Curent
Apa
Canalizare
Gaz
CATV
Telefon
Acces internet
Centrala proprie
Calorifere
Izolatie Exterior
Vopsea lavabila
Faianta
Parchet
Gresie
Ferestre PVC
Bucatarie Mobilata
Complet mobilat
Interfon
Localizare
Anna Maria Zsigmond
Sales Associate
Esti interesat de aceasta proprietate ?
Proprietati similare
TOP 0% comision De vanzare Imagine 3353
Apartament de vanzare 2 camere decomandate+dressing+parcare 60 mp utili!
Floresti 97.000€
2 camere 1 baie 60mp
TOP De vanzare Imagine 3345
Apartament de vanzare 3 camere zona Stejarului!
Floresti 85.000€
3 camere 1 baie 58mp
TOP 0% comision De vanzare Imagine 3337
Apartament de vanzare 3 camere cu parcare pe strada Teilor!
Floresti 96.000€
3 camere 1 baie 67mp
TOP 0% comision De vanzare Imagine 3310
Apartament 3 camere , 58 mp , balcon , loc parcare , zona Tineretului
Floresti 90.900€
3 camere 1 baie 58mp
TOP De vanzare Imagine 3248
Apartament 2 camere, mobilat, LIFT, parcare, str.Abatorului, zona parc POLIGON
Floresti 105.000€
2 camere 1 baie 39.50mp
TOP De vanzare Imagine 3215
Apartament de vanzare, 40mp, parcare, Lift, str Abatorului, zona Parc Poligon!!
Floresti 84.000€
1 camera 1 baie 40mp