Imagine 100

Casa duplex, semifinisata, 120 mp utili, teren 250, zona Tautiului!

Aceasta proprietate nu mai este activa! Pentru oferte similare contactati agentul
ID: P109798 Floresti 31
210.000€
Descriere
Praxa Imobiliare va propune spre vanzare casa tip duplex situata intr-un ansamblu de case noi cu o panorama foarte frumoasa inconjurata de padure si cu acces foarte usor spre oras.
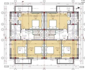
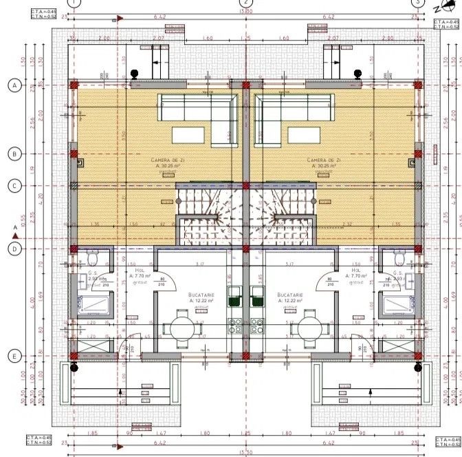
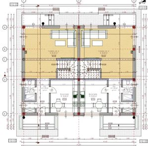
Suprafata utila a casei este de 120 mp, cu regim de inaltime P+E, avand urmatoarea compartimentare:
PARTER: Living cu loc de luat masa, bucatarie separata, hol generos, baie, terasa
ETAJ: 3 dormitoare, 2 bai, hol, 2 balcoane.
Pod cu spatiu pentru depozitare.
Suprafata de teren aferenta este de 250 mp.
Se predau semifinisate, cu incalzire in pardoseala, centrala termica, curtea amenajata.
Materialele folosite sunt de calitate foarte buna: izolatie de 15 cm eps 80, caramida Cemacon, tigla de culoare gri Bramac, piatra naturala pe fatade, tamplarie PVC gri tripan cu 3 garnituri si baghete de incalzire.
Pretul este de 210.000 + TVA.
Pentru mai multe detalii va rugam sa ne contactati telefonic la Tel 0774 051 458
ID P109798
Caracteristici
  • ID:P109798
  • Nr. camere:4
  • Nr. dormitoare:3
  • S. utila:120.00 mp
  • S. teren:250.00 mp
  • Nr. bucatarii:1
  • Nr. bai:3
  • Nr. balcoane:2
  • An constructie:2024
  • Structura rezistenta:Caramida
  • Regim inaltime:P+1
  • Orientare:Est-Vest
Specificatii
Curent
Apa
Canalizare
Gaz
Centrala proprie
Incalzire pardoseala
Izolatie Exterior
Ferestre Termopan
Usa intrare Lemn
Contor gaz
Localizare
Darius Drigla
Sales Associate
Esti interesat de aceasta proprietate ?
Proprietati similare
TOP De vanzare Imagine 3962
Casa individuala, 4 camere, 120 mp, 500 mp teren, zona Gilau, Cluj!
Gilau, Central 220.000€
4 camere 2 bai 120mp
TOP De vanzare Imagine 3873
Casa individuala, 4 camere, teren 800 mp, panouri fotovoltaice 6kw, zona Gilau!
Gilau 215.000€
4 camere 3 bai 109mp
TOP De vanzare Imagine 3849
CASA INSIRUITA | Ansamblu rezidential privat, mobilat complet, zona Sesul de sus
Floresti 213.000€
4 camere 3 bai 81mp
TOP 0% comision De vanzare Imagine 3910
Casa individuala, 4 camere, 120 mp, 500 mp teren, zona Gilau, Cluj!
Gilau, Central 220.000€
4 camere 2 bai 120mp
TOP De vanzare Imagine 1613
Duplex de vanzare 4 camere zona Terra!
Floresti 210.000€ 217.000€
4 camere 2 bai 103mp
TOP De vanzare Imagine 2683
Casa cuplata, 92 mp utili, complet mobilitata si utilata, zona Urusagului!
Floresti 210.000€
4 camere 2 bai 92mp